






Ort: Davos
Auftraggeber: Gemeinde Davos
Team: René Frey, Christian Käser, Silvio Koch
Leistung: Architektur, Visualisierung
Bauingenieur: APT Ingenieure GmbH, Zürich; David Vögeli
Verfahren: Projektwettbewerb im offenen Verfahren
Wettbewerb: 2022
Die bestehende Schulanlage Davos Platz wird mit Räumen der Talentschule, einer Tageschule und der Schulverwaltung erweitert. Die heutige Anlage zeichnet sich durch seine Durchlässigkeit und der Einbindung ins Terrain des Landwassertals aus. Im Zentrum liegt der durch die Schulbauten gefasste Pausenplatz. Dieser wird in seiner vollen Grösse und Terrassierung erhalten.
Der Neubau an Stelle des in die Jahre gekommenen Zwischentrakts behält die Qualitäten des Ensembles bei und verbessert die Erschliessung der Gebäude sowie die hindernisfreie Durchwegung. Die heute abweisende Rückseite zur Schulstrasse wird durch die neue allseitige Orientierung des Gebäudes aufgewertet und der Strassenquerschnitt wird auf eine funktional und städtebaulich angenehme Grösse dimensioniert. Der feine Versatz der Volumen akzentuiert die Durchgänge zum Pausenplatz und markiert die Zugänge. Ein filigranes Dach verbindet das neue Schulhaus mit den beiden bestehenden Nachbarn. Es ermöglicht eine geschützte Verbindung und schafft einen qualitativen Aussenraum im Zentrum der Anlage.
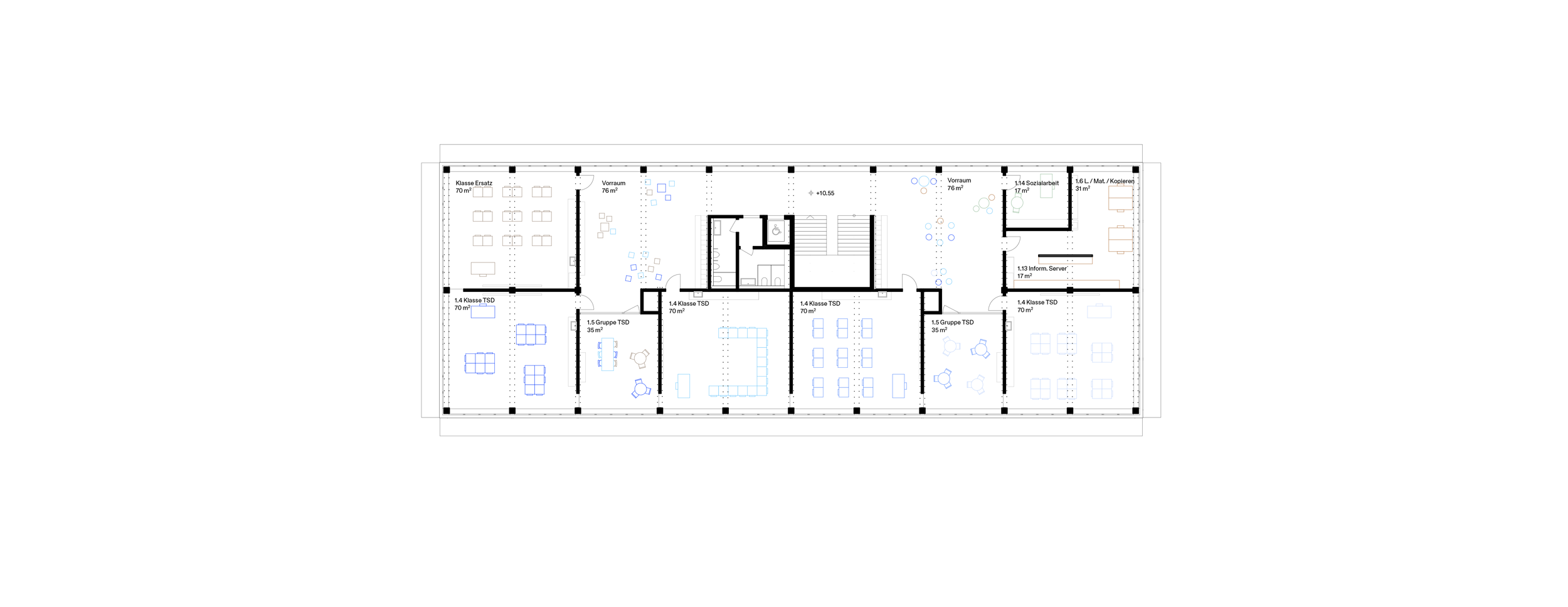
Das Regelgeschoss basiert auf einem symmetrischen Aufbau mit zentraler Erschliessung. Die zweiseitige Raumstruktur wird durch die an den Enden gedrehten Klassenräume optimal genutzt. Ein frei bespielbarer Erschliessungsraum entlang der Fassade verbindet jeweils vier Haupträume. Das Gebäude ist als moderner Holzbau, mit einem Sockel aus Beton, welcher die Topographie der Umgebung aufnehmen kann, konstruiert. Die Obergeschosse basieren auf einem klaren Rastersystem, welches sich in der umlaufenden Rhythmisierung der Fassade widerspiegelt. Die auskragenden Vordächer geben dem Gebäude eine Leichtigkeit, welche durch das Schattenspiel auf der Fassade verstärkt wird. Die Fügung und Haptik des Holzes bilden den Charakter der Räume, die feine Tektonik mit integrierten Photovoltaikmodulen prägt den Ausdruck der Fassade.