







Ort: Dorfstrasse 2, 6362 Stansstad
Auftraggeber: Gemeinde Stansstad
Team: René Frey, Christian Käser, Silvio Koch
Leistung: Architektur, Visualisierung
Landschaftsarchitektur: SIMA | BREER GmbH, Winterthur
Modellbau: Gruber Forster GmbH, Zürich
Verfahren: Ortsbaulicher Wettbewerb im offenen Verfahren
Planung: 2022
Das Grundstück auf dem Stanserboden liegt in unmittelbarer Nachbarschaft zum historischen Dorfkern von Stansstad. Die polygonale Form des Grundstückes gründet auf der ehemaligen Nutzung durch die Stansstad-Engelbergbahn. Entlang des ehemaligen Gleisverlaufs entsteht die «Depotgasse». Sie schafft einen lebendigen Stadtraum und ermöglicht sowohl den bestehenden als auch den neuen Gebäuden einen Zugang ab dem öffentlichen Raum. Im Südosten mündet der Weg im «Gemeindehausplatz».
Das Projekt sieht drei Gebäudekörper vor. Das repräsentative Gemeindehaus am «Gemeindehausplatz» sowie zwei Wohnbauten an der «Depotgasse». Die drei Volumen orientieren sich in Körnung, Form und Setzung an der Morphologie des historischen Dorfkerns.
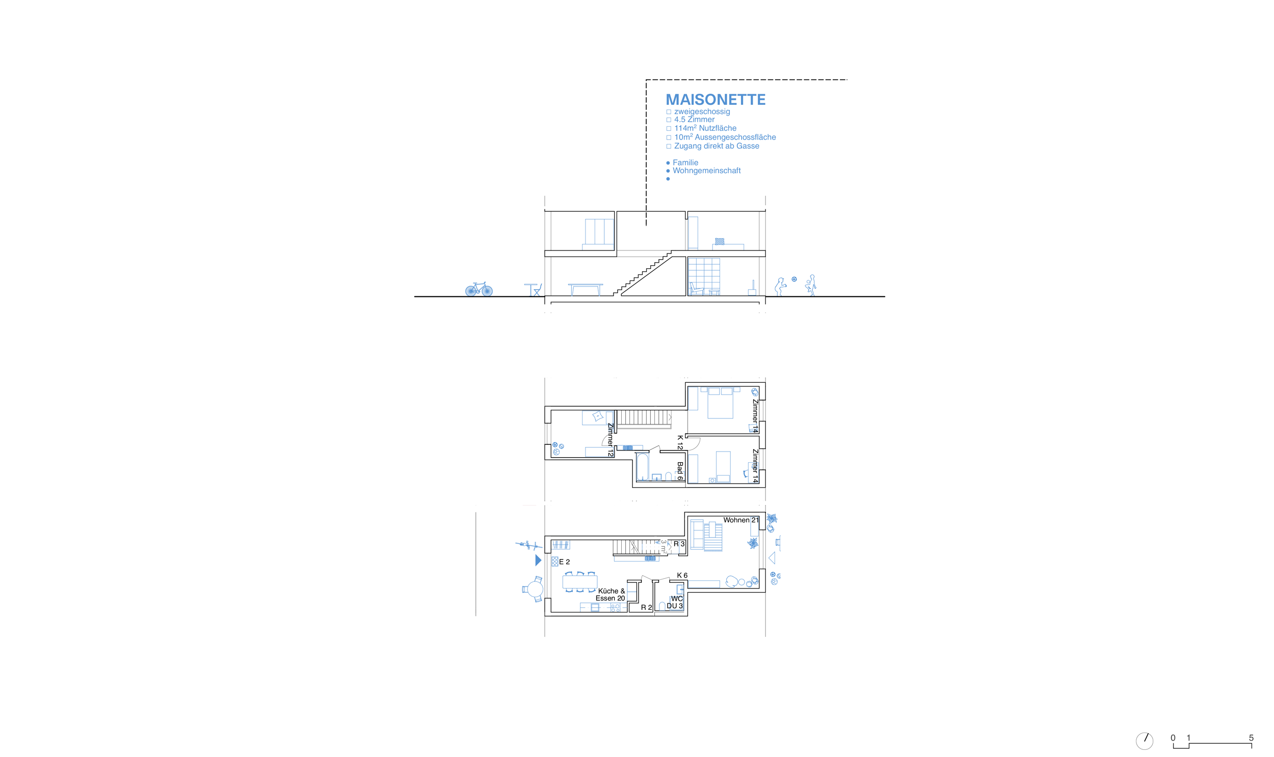
Die innere Organisation der Gebäude wird losgelöst vom historisch Gegebenen entwickelt. Unterschiedliche Typologien erreichen eine vielfältige Nutzerschicht. Kombinationen, Verbindungen und Trennungen von Einheiten sind möglich. Neben den anpassbaren «Flexwohnungen», finden sich mehrgeschossige Familienhäuser mit Zugang ab der Gasse, eine Treppenhaus-WG für ein gemeinschaftliches Wohnen im Grosshaushalt sowie kleinere Geschosswohnungen für Einzelpersonen. Jede Typologie hat ihre präzise Lage innerhalb des Ensembles und wird durch charakteristische Merkmale ausgezeichnet. Ergänzt wird das Gefüge mit Innen- und Aussenräume für die Gemeinschaft. Ein lebendiges Quartier entsteht!